• Auftraggeber: privat
  • Beendigung der Studie: 2022
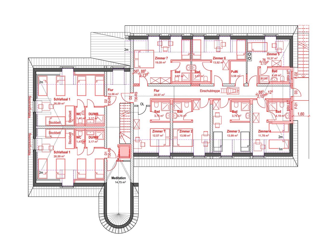
Beschreibung

    Die Bauherren - ein Verein mit Schwerpunkt in der religiösen Familien- und Jugendarbeit - haben vorsorglich eine Brandverhütungsschau durchführen lassen. Darauf basierend entstanden zwei Entwürfe, um zu ermitteln, wie das Gebäude auf den aktuellen Standard umgebaut werden kann. Es wurde dazu ein Kostenüberschlag erstellt.

    Machbarkeitsstudie in mehreren Varianten:

  • Umbau des Dachgeschosses
  • Änderung des Raumprogramms: Jedem Zimmer wird ein Duschbad direkt zugeordnet
  • Herstellung eines zweiten Flucht- und Rettungsweges
  • Aufzug
  • Rollstuhlgerechtes WC
  • Barrierefreies Apartment zur Übernachtung
  • minimaler Eingriff in das Dach